OFF-MARKET

BELOW MARKET VALUE

Available for Sale

Cambridge, Ontario

Beautifully Updated

Brick Bungalow

Move-in Ready -

Large Private Lot

- 4 Bed + 2 Bath

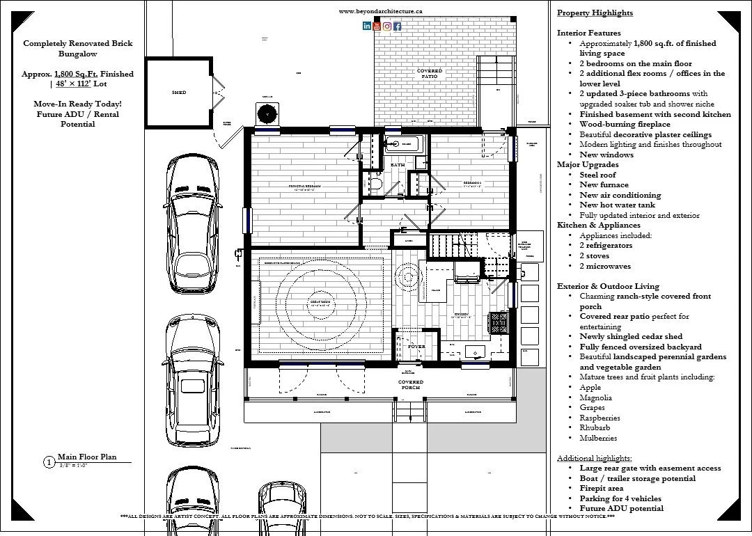
A collage advertising a renovated brick bungalow for sale, with interior and exterior photos, a floor plan, and property details. Includes images of bedrooms, living room, backyard, porch, and architectural features.

OFF-MARKET

BELOW MARKET VALUE

Newly Constructed

2026 Ontario Building Code

Home Available for Sale

Paris, Ontario

Move-in Ready -

June 8th

5 Bed + 3.5 Bath

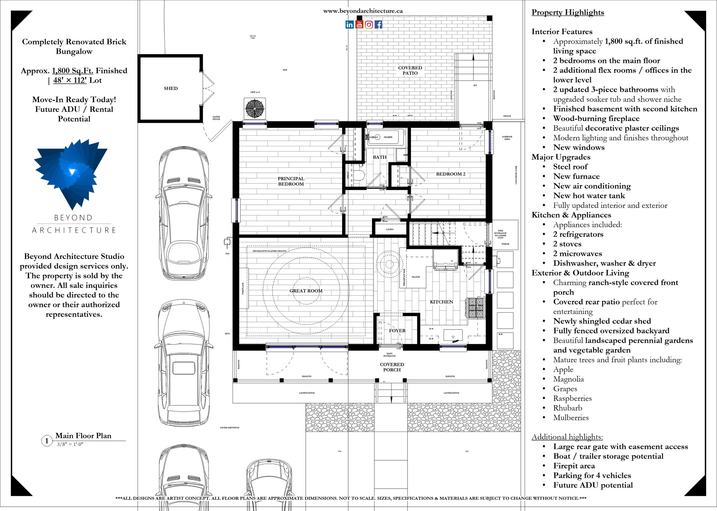
Architectural floor plan of a renovated brick bungalow with property highlights and features listed on the right side, including interior, kitchen, appliances, outdoor living, and upgrades.
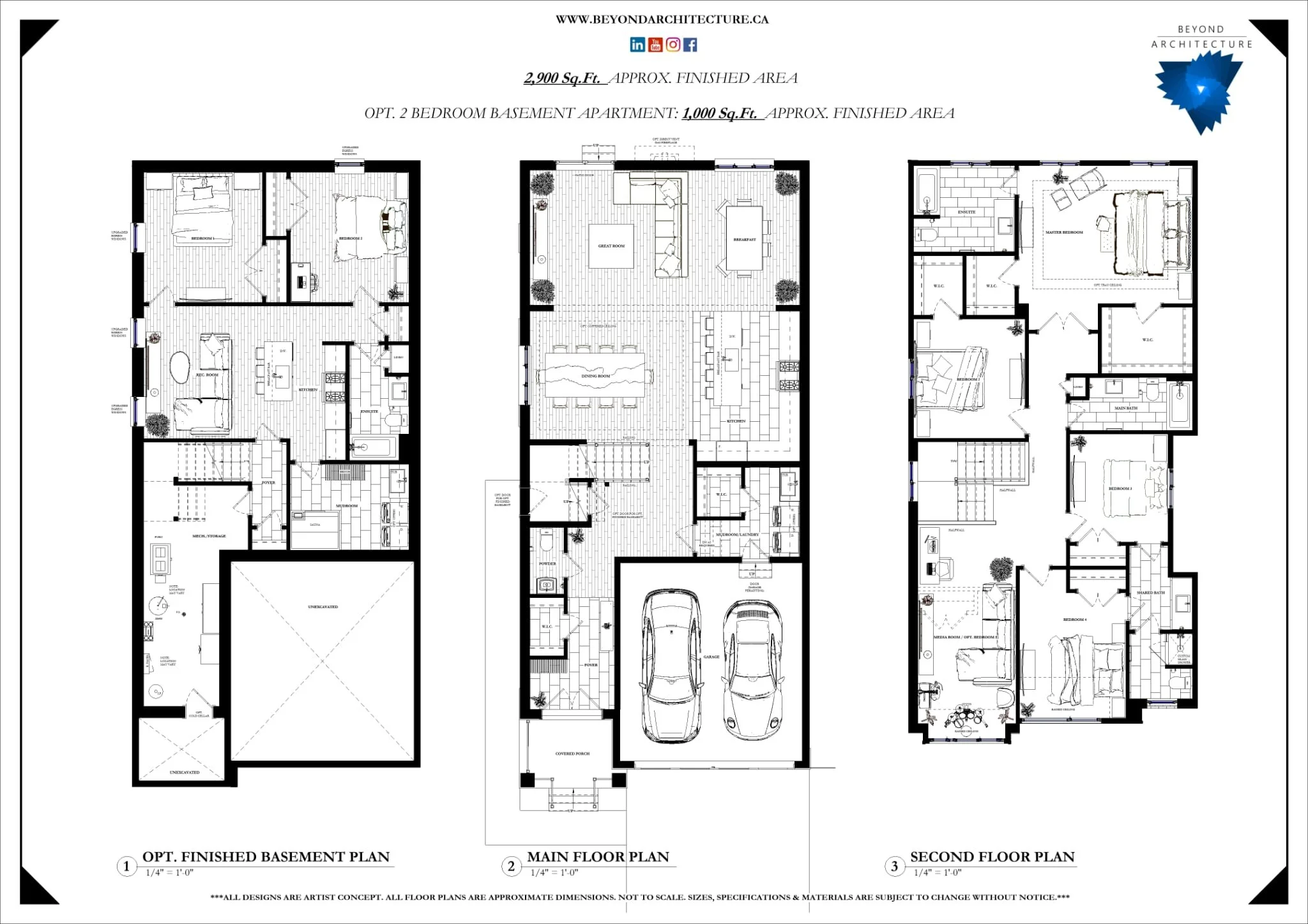
Floor plans for a three-story house including an optional finished basement, main floor, and second floor, with labeled rooms and measurements.